
Provender Mill, Bruton, Somerset
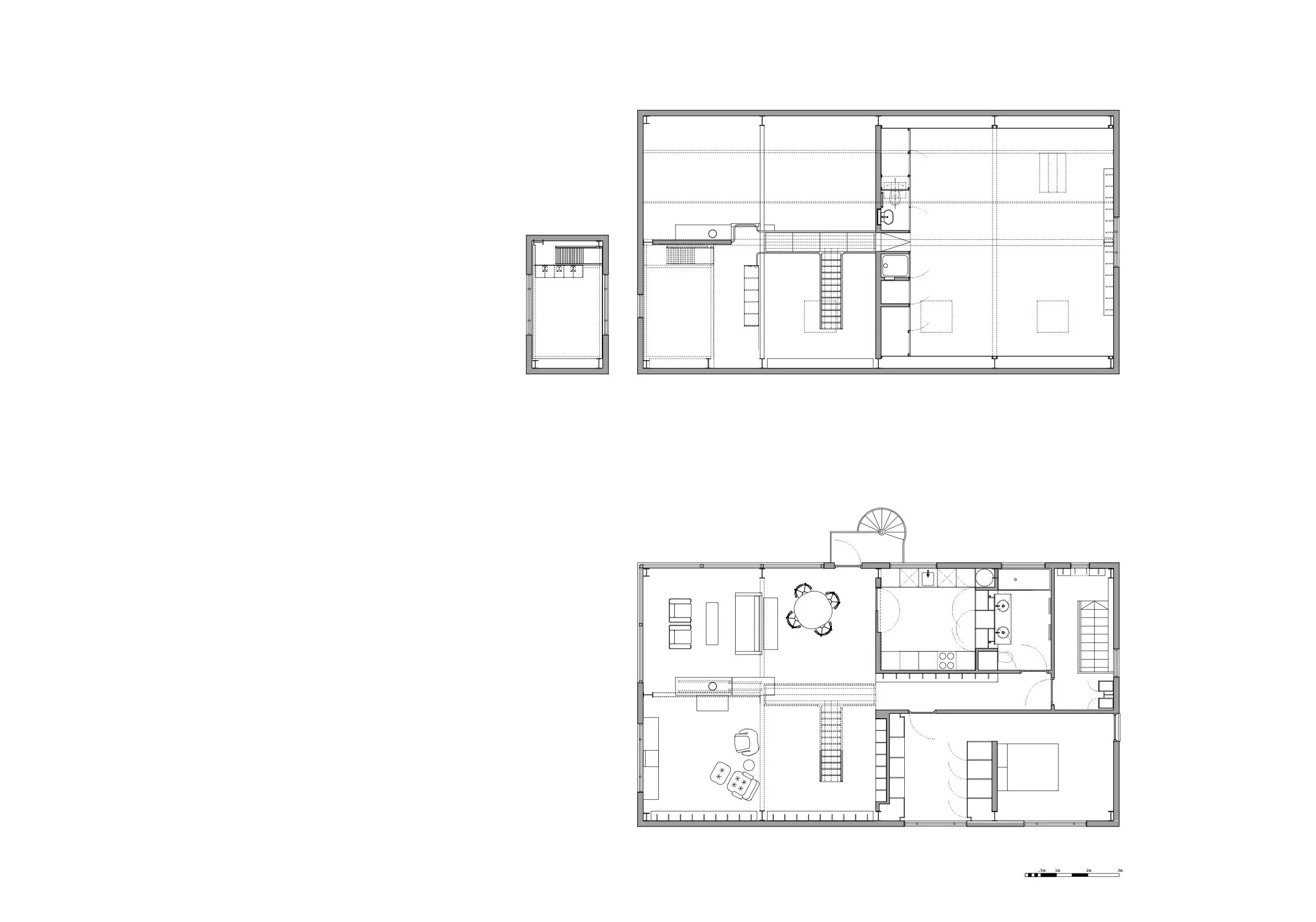
This commission involved the remodeling and renovation of a Bruton landmark; the upper two levels and garden studio of a 1940s steel framed agricultural mill. The mill tower calls for attention in its pastoral setting. It forms a triangulation with the Church and a distant hilltop Dovecote.
Upon entrance, a book lined passageway leads to expansive California Case Study House-like space; an observatory for views of the town and bucolic English landscape. The position of the fireplace organises different use of the main room. In concept, the fireplace is like a Claude glass, both a frame and reflecting surface, which offers a particular view over the town. The frame within a frame character of passageways, bridge landings, and house rooms, present pictures of the ever-changing landscape outside.
This home was commissioned by respected artists and academics, one of whose work was selected for the seminal exhibition, “When Attitudes Become Form” (1969). The apartment was later acquired by the music critic of a Sunday broadsheet and another prominent artist, by agent, The Modern House. The Modern House published this design as part of a “selection of the most iconic houses marketed over the last decade”. https://www.themodernhouse.com/journal/modern-gifts-the-modern-house-book/ The design was also published in House and Garden, “The 20 most extraordinary houses ever sold by The Modern House, the go-to estate agent for Britain's design cognoscenti”
The design is listed in the revised edition of Pevsner's The Buildings of England: South and West Somerset.