
Ottoman House, Hampstead, London

Industrial Loft, City of London

Provender Mill, Bruton, Somerset

Via Mastro Giorgio, Testaccio, Rome

Conservation, Planning & Urban Design

Le Presbytère, nr. Lectoure, Le Gers, France

North End, Hampstead, London

Eton Avenue, Hampstead, London

Remodeled Apt, Belsize Park, London

Pre-Revolutionary Hunting Lodge, Vouvray, France, Conservation Plan

Connaught Square, London

Details

Ellerdale Road, Hampstead, London

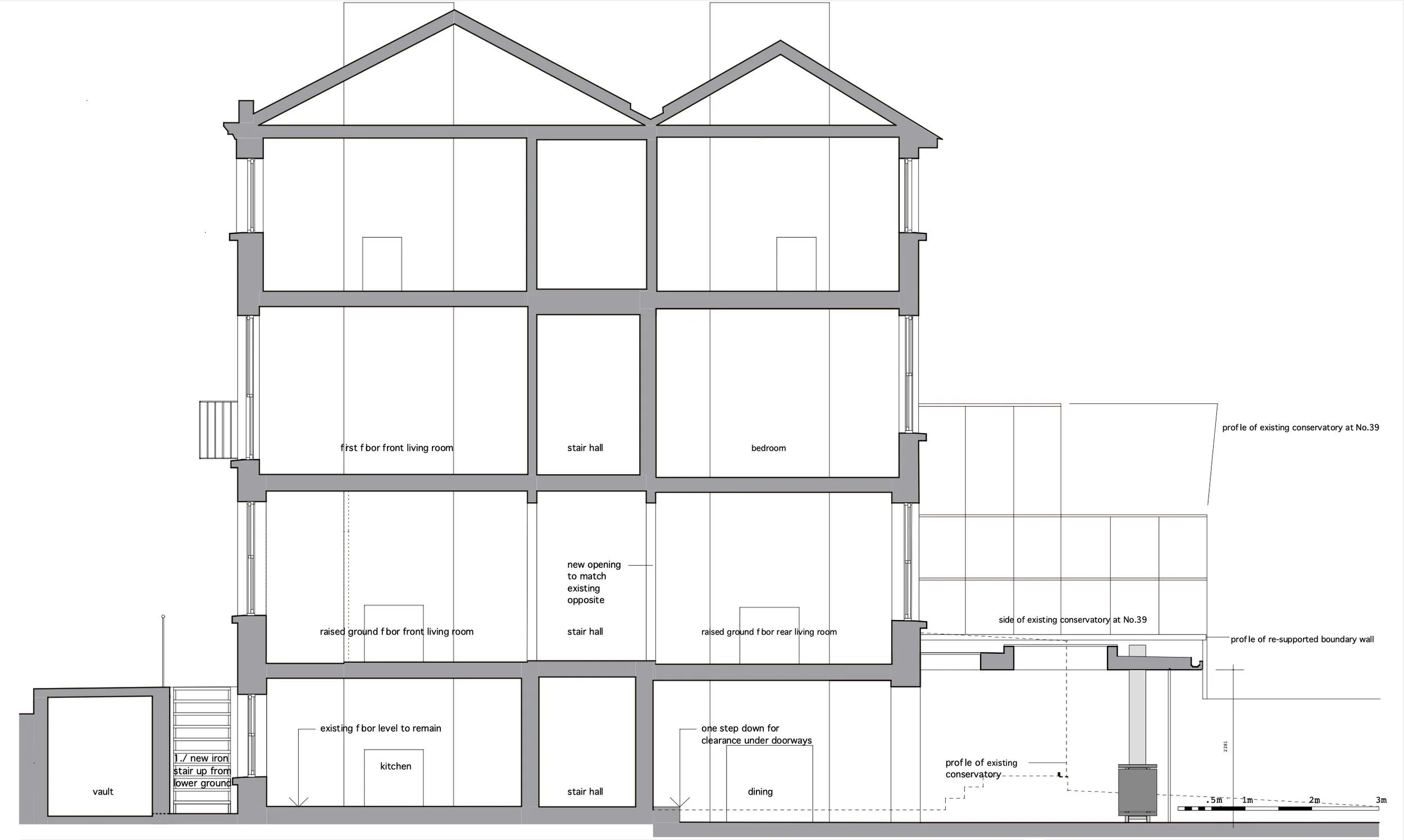
Downshire Hill, Hampstead, London

Glas Table(s)
